KPM60 Motor Controller

KPM60 series low-voltage motor protection controller is suitable for control protection circuit that rated voltage 380-660V, rated current 5-500A, providing a sound protection and control measures. It could achieve motor network management.
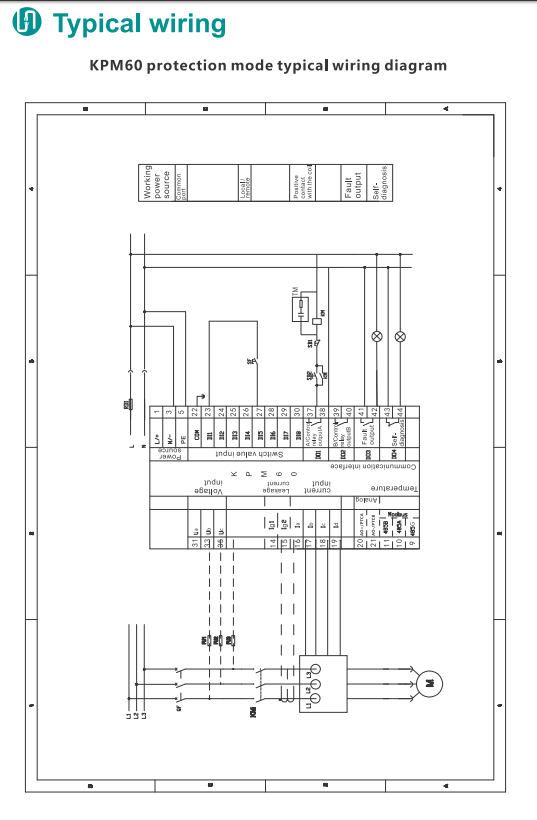
Overview Function Specifications Wiring Diagram Download
    KPM60 series of low-voltage motor protection controller is suitable for control protection circuit that rated voltage 380V to 660V, rated current 5A to 500A , providing a sound protection and control measures, It could achieve motor network management by the communication method that based on a variety of bus, the controller application greatly improves the design and production efficiency, reducing the on-site commissioning and maintenance workload.


Function features

Comprehensive motor protection
口Overload protection
口Stall protection
口Current imbalance protection
口Start overtime protection
口Ground protection
口Phase failure protection
囗Contactor sectional current protection
口Underload protection
口Blocking protection
口Leakage Protection
口TE time protection
囗Overvoltage protection
口Undervoltage protection
口Under-power protection
口Power factor protection
口Undervoltage restart
口Phase sequence protection
口Temperature protection
口/External fault protection

Flexible start function
口Protection mode
口Direct start mode
口Bidirectional reversible start
囗Star / triangle start

Communication function
口Modbus-RTU
口Profibus-DP

Control method
口Monitoring center remote control
口Operation panel control
口External input control (Such as: button)

Perfect management function
Use different operating, maintenance and diagnostic data to help users understand possible faults and prevent them with preventative measures.
In the case of failure, rapid diagnosis, positioning
And correct the problem.

Monitoring data
囗Motor status
囗Three-phase current
囗The maximum starting current
囗Heat capacity
囗Ground current
口Leakage current (need to add leakage protection function)
囗Three-phase voltage (need to increase the voltage protection function)
口Active / Reactive power (need to increase the voltage protection function)
口Power Factor (Need to increase the voltage protection function)
口Active / Reactive power (need to increase the voltage protection function)

 Maintain data
口 Motor running time
口 Motor starts times
口 Motor tripping times

Diagnostic data
囗Self-test information
口Current / Auxiliary contact feedback error
口Motor fault alarm information
口Motor fault trip information
囗run cool down time
 

KPM60Low-voltage motor protection controller-Technical parameters
Working power source Operating Voltage AC85~265V/DC80~300V
  Rated power <5VA
Input voltage Rated voltage 380V-660V
  Frequency range 45~65Hz
Input current Rated current 5A,32A, 100A, 250A, 500A
  Frequency range 45~65Hz
Input/Output Switch value input 8-way passive main line contact DI input, internal supply DC24V power source
  Relay output 4-way DO output,Contact capacity 250VAC/5A,30VDC/5A
  Analog output Output range 4~20mA,Programmable
  Temperature input Measure range 0℃~100℃
Measurement accuracy Current ±1.0%(10%Ie~120%Ie)
  Leakage current ±1.0%(5%Ise~100%Ise)
  Voltage ±0.5%(20%Ue~150%Ue)
  Frequency ±0.02Hz(45Hz~65Hz)
  Power factor ±1.0%(-1~1)
  Energy ±2.0%
  Power ±2.0%
Communication Communication interface RS485,Photoelectric isolation interface
  Communication protocol Modbus-RTU,1200~38400bps
Profibus-DP,9600~12Mbps
Electrical insulation Power frequency withstand voltage AC2kV/min~1mA Input-output-power source (GB/T 13729)
  Insulation resistance >50MΩ                            (GB/T 13729)
  Impact voltage 5kV(Peak),1.2/50us    (GB/T 13729)
Working environment Operating temperature -25℃ ~ +70℃
  Relative humidity 5%~95% No condensation
  Storage temperature -30℃ ~ +75℃
Electromagnetic Compatibility Surge (impact) immunity GB/T 17626.5-2008,Level3
  Electrical fast burst immunity GB/T 17626.4-2008,Level3
   Electrostatic discharge immunity GB/T 17626.2-2006,Level3
  Power frequency magnetic field immunity GB/T 17626.8-2006,Level3